Villa singola in vendita

Torgiano, Località Signoria - Signoria
€ 350.000
4 locali 4 locali
130 Mq 130 Mq
2 bagni 2 bagni

Villa singola in vendita

Torgiano, Località Signoria - Signoria

Descrizione annuncio

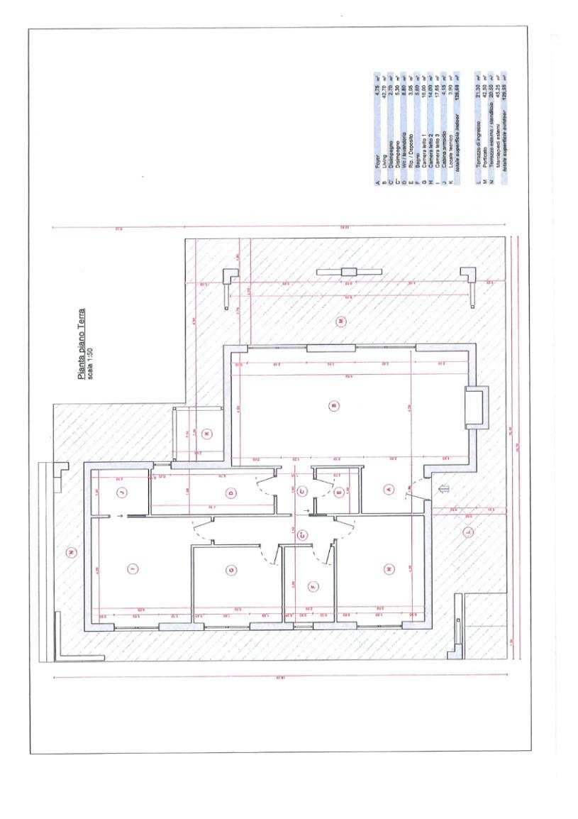
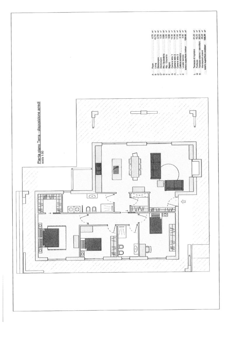
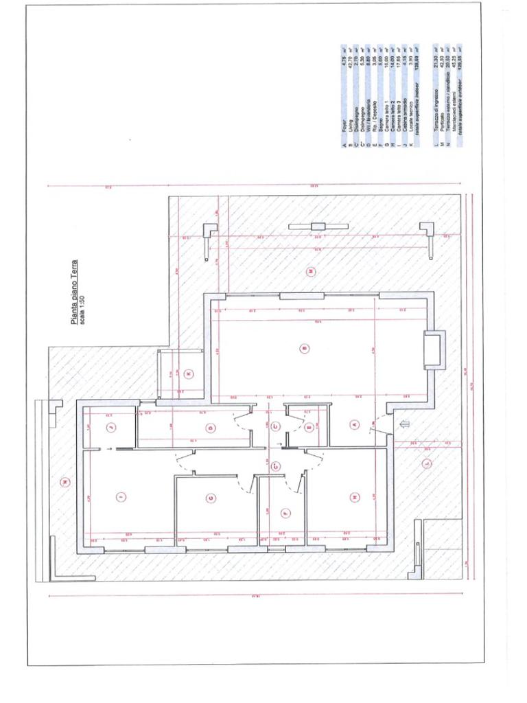
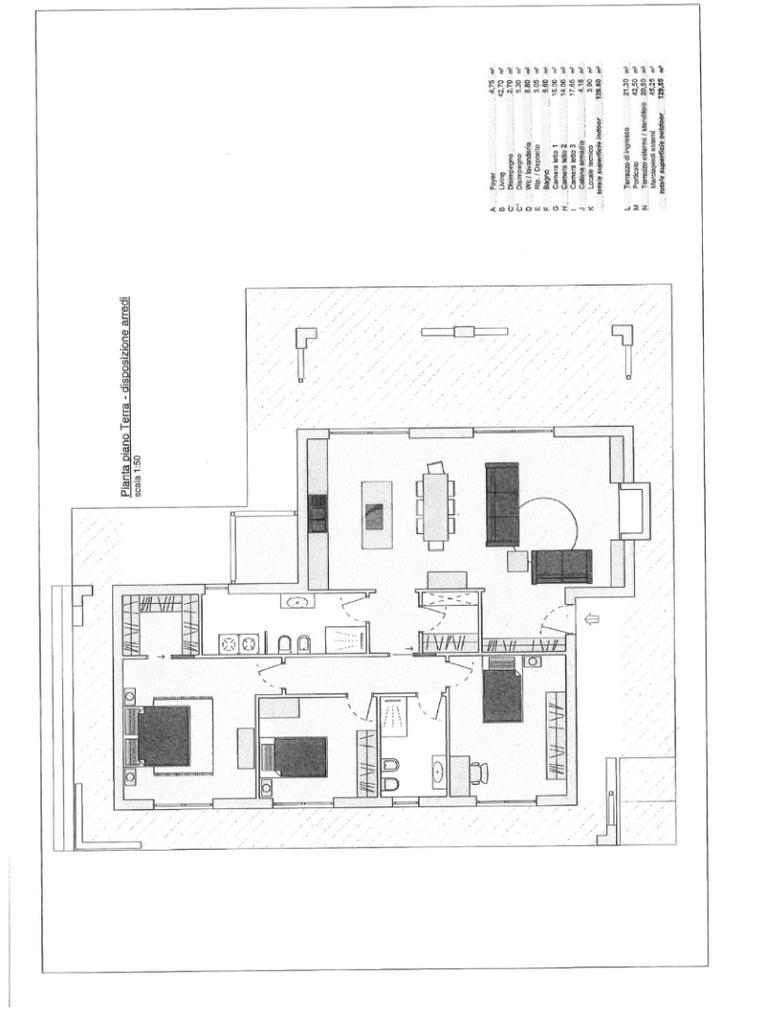
Torgiano: tra Torgiano e Bettona nel cuore della località di Signoria, nel comune di Torgiano, si trova una villa singola di nuova costruzione, immersa nella tranquillità della campagna umbra. Questa residenza di 130 mq offre un ambiente raffinato e moderno, con un'attenzione particolare all'efficienza energetica, certificata in Classe A4. La villa si sviluppa interamente al piano terra, garantendo un accesso diretto al giardino privato, circondato da suggestivi oliveti. Gli spazi interni comprendono quattro locali ben distribuiti: tre camere da letto, due bagni e un'ulteriore stanza versatile, ideale per un ufficio o una sala hobby. La proprietà dispone di due posti auto, assicurando comodità e praticità. La villa rappresenta una soluzione ideale per chi cerca un'abitazione signorile in un contesto naturale, senza rinunciare ai comfort moderni e all'efficienza energetica.

La villetta è composta da ingresso, zona giorno con cucina a vista, dispensa, due camere medie, una camera matrimoniale con cabina armadio e due bagni finestrati con doccia.

Completano la proprieta' un bellissimo giardino recintato ed un porticato vivibile di 45 mq.

POSSIBILITA' DI PERSONALIZZARE INTERNI.

Mostra tutto

Nelle vicinanze

Scuole Scuole
Scuole
2,4 Km
Scuola secondaria di primo grado "gerardo Dottori"
2,5 Km
Farmacia Farmacia
Farmacia Ricci
2,0 Km
Supermercati Supermercati
Supermercato A&O
2,0 Km
Macelleria del Corso
2,2 Km
Bar Bar
locomotiva
1,9 Km
Bar dello Sport
2,0 Km
Ristoranti Ristoranti
Ristoranti
2,1 Km
Mostra tutto

Caratteristiche

Rif.:
61171192
Piano:
1 (Piano terra con giardino)
Posti auto:
2
Camere da letto:
3
Arredamento:
Assente
Condizionamento:
Autonomo
Mostra tutto
Prezzo Prezzo
€ 350.000
Rata mutuo Rata mutuo
€ 1.650 / mese
Proponi il tuo prezzoProponi il tuo prezzo

Classe Energetica

A4
A4
A4
A4
A4
A4
A4
A4
A4
EP invernale del fabbricato:
EP estiva del fabbricato:
Anno di costruzione:
2026
Riscaldamento:
Autonomo
Tipo impianto:
A pavimento
Tipo alimentazione:
Pannelli

Ti interessa visionare l'immobile?

Fissa un appuntamento  Fissa un appuntamento

Richiedi informazioni

Clicca su Leggi per aprire l'informativa
* Questi campi sono obbligatori

Calcola il tuo mutuo

Semplice e senza impegno
Anticipo

( % )
Mutuo

( % )

pochi semplici passi

inserisci i tuoi dati
Questionario completato
Grazie per aver richiesto un appuntamento senza impegno con un nostro Consulente del Credito e Assicurativo.

Hai inserito correttamente tutti i dati necessari e a breve riceverai una e-mail con un link da convalidare per inviare i tuoi dati.
Affiliato
Studio San Martino Torgiano Srl
Via Deruta, 102 06132 Perugia (PG)
Via Deruta, 102 06132 Perugia (PG)
Zona: San Martino-Montebello-Torgiano-Brufa-Bettona
Mostra su mappa
Orari: LUN /VEN 9.00 - 13 15.30 - 19.30 SABATO 9.00 - 13.00 SABATO POMERIGGIO SU APPUNTAMENTO
Affiliato
Studio San Martino Torgiano Srl
Via Deruta, 102 06132 Perugia (PG)

2026 Tecnocasa Franchising S.p.A. - P. IVA 08365160152 - Via Monte Bianco 60/A 20089 Rozzano (MI). Ogni agenzia ha un proprio titolare ed è autonoma. Privacy policy | Policy utilizzo | Cookie policy