Porzione di quadrifamiliare in vendita

Perugia, Via Emanuela - San Martino In Campo
€ 320.000
4 locali 4 locali
160 Mq 160 Mq

Porzione di quadrifamiliare in vendita

Perugia, Via Emanuela - San Martino In Campo

Descrizione annuncio

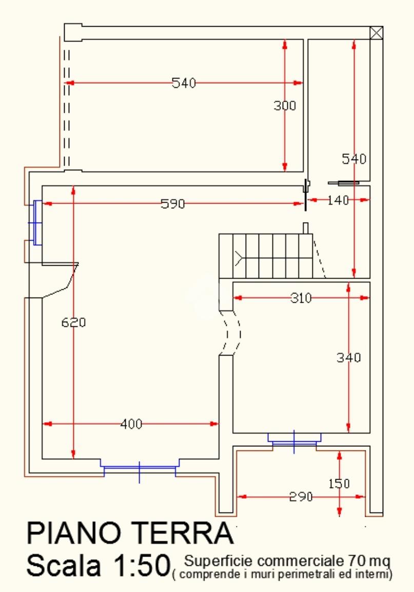
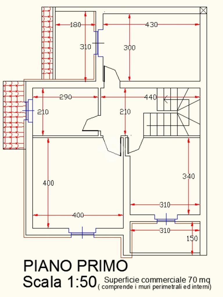
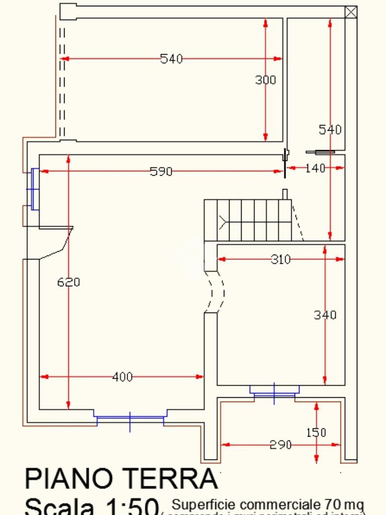
San Martino in Campo: nel comune di Perugia, si propone in vendita una porzione di quadrifamiliare di nuova costruzione. L'immobile, di 160 mq, si sviluppa su due livelli piano terra e primo piano e rappresenta una soluzione ideale per chi cerca tranquillità e riservatezza. La zona è caratterizzata da un contesto residenziale esclusivo, lontano dal caos cittadino ma ben collegato ai principali servizi. La costruzione, prevista per il 2026, è progettata con particolare attenzione alle prestazioni energetiche, garantendo un comfort abitativo di alto livello e un notevole risparmio sui consumi. Gli spazi interni sono ampi e ben distribuiti, pensati per offrire funzionalità e comfort. L'immobile si distingue per la qualità dei materiali e delle finiture, rispondendo alle esigenze di chi cerca una soluzione abitativa moderna e raffinata.

Al piano terra abbiamo un' ampia zona giorno con cucina abitabile, un disimpegno ed un bagno; al piano primo troviamo tre camere da letto ed un bagno.

Completa la proprieta un giardino di circa 200 mq ed una corte pavimentata con doppio ingresso carrabile e pedonale. CLASSE A

Mostra tutto

Nelle vicinanze

Trasporto pubblico Trasporto pubblico
San Martino in Campo
San Martino in Campo
60 m
Via Deruta
Via Deruta
120 m
Santa Maria in Campo
Santa Maria in Campo
230 m
Scuole Scuole
scuola media
160 m
scuola elementare
240 m
Scuola secondaria di primo grado "gerardo Dottori"
2,7 Km
Negozi Negozi
Negozi
320 m
Bar Bar
Vanilla Cub
2,7 Km
Ristoranti Ristoranti
Pantagruel
250 m
Pizzeria Oasi
380 m
Mostra tutto

Caratteristiche

Rif.:
61141726
Piano:
1 (Piano terra)
Posti auto:
2
Terrazzi:
1
Camere da letto:
3
Arredamento:
Assente
Mostra tutto
Prezzo Prezzo
€ 320.000
Rata mutuo Rata mutuo
€ 1.520 / mese
Proponi il tuo prezzoProponi il tuo prezzo

Classe Energetica

A4
A4
A4
A4
A4
A4
A4
A4
A4
EP invernale del fabbricato:
EP estiva del fabbricato:
Anno di costruzione:
2026
Riscaldamento:
Autonomo
Tipo impianto:
A pavimento
Tipo alimentazione:
Metano

Ti interessa visionare l'immobile?

Fissa un appuntamento  Fissa un appuntamento

Richiedi informazioni

Clicca su Leggi per aprire l'informativa
* Questi campi sono obbligatori

Calcola il tuo mutuo

Semplice e senza impegno
Anticipo

( % )
Mutuo

( % )

pochi semplici passi

inserisci i tuoi dati
Questionario completato
Grazie per aver richiesto un appuntamento senza impegno con un nostro Consulente del Credito e Assicurativo.

Hai inserito correttamente tutti i dati necessari e a breve riceverai una e-mail con un link da convalidare per inviare i tuoi dati.
Affiliato
Studio San Martino Torgiano Srl
Via Deruta, 102 06132 Perugia (PG)
Via Deruta, 102 06132 Perugia (PG)
Zona: San Martino-Montebello-Torgiano-Brufa-Bettona
Mostra su mappa
Orari: LUN /VEN 9.00 - 13 15.30 - 19.30 SABATO 9.00 - 13.00 SABATO POMERIGGIO SU APPUNTAMENTO
Affiliato
Studio San Martino Torgiano Srl
Via Deruta, 102 06132 Perugia (PG)

2026 Tecnocasa Franchising S.p.A. - P. IVA 08365160152 - Via Monte Bianco 60/A 20089 Rozzano (MI). Ogni agenzia ha un proprio titolare ed è autonoma. Privacy policy | Policy utilizzo | Cookie policy