Trilocale in vendita

Deruta, Via Del Mandorlo - Ponte Nuovo
€ 285.000
3 locali 3 locali
85 Mq 85 Mq
2 bagni 2 bagni

Trilocale in vendita

Deruta, Via Del Mandorlo - Ponte Nuovo

Descrizione annuncio

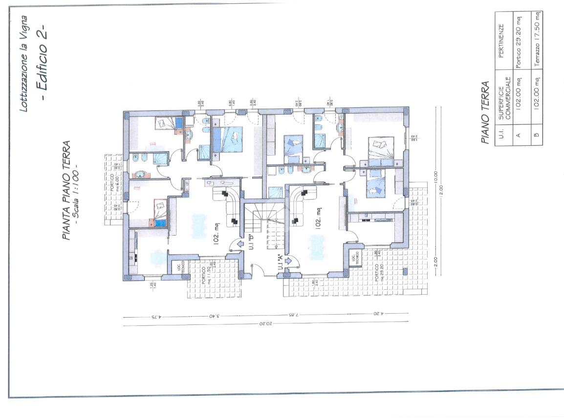
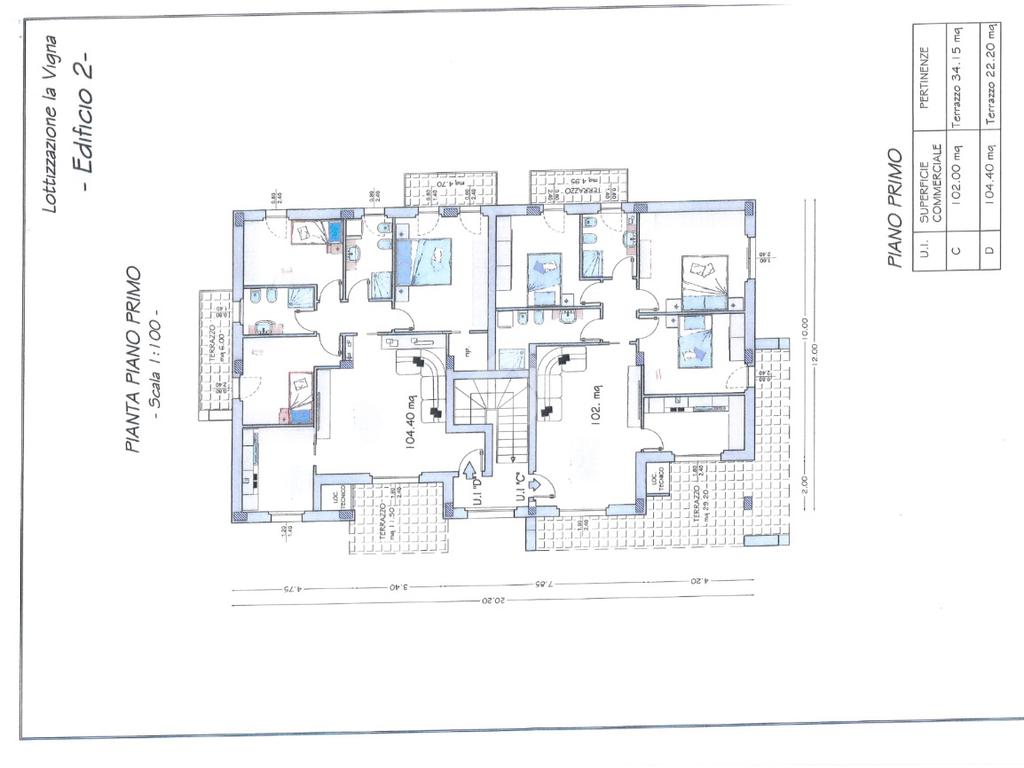
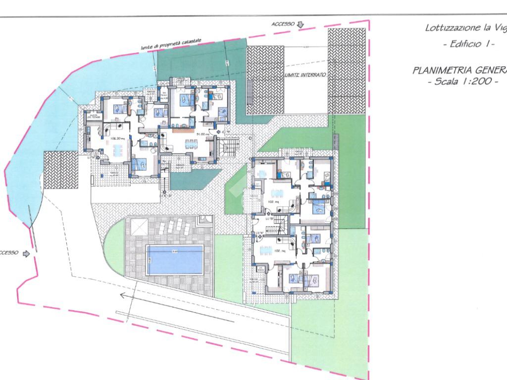
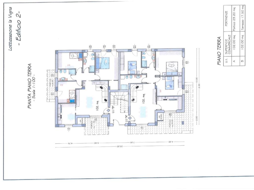
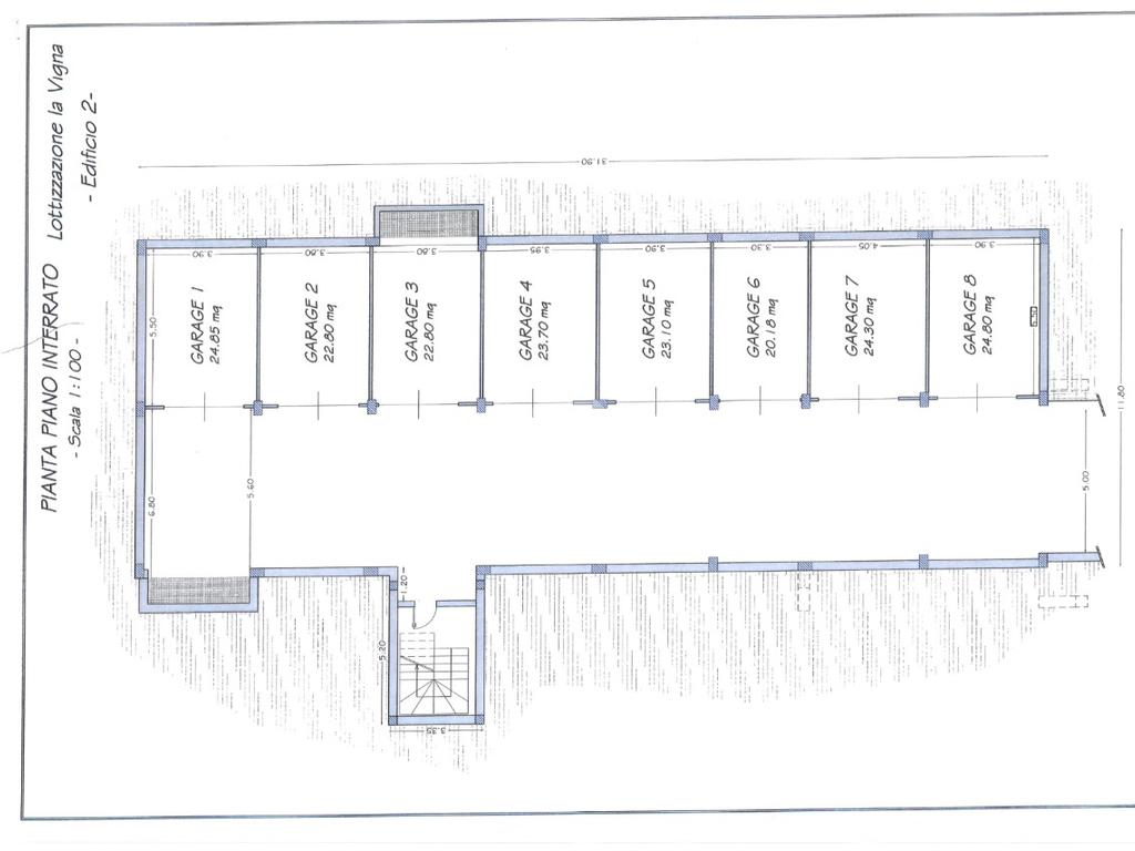
Deruta: proponiamo un immobile di nuova costruzione, pronto nel 2026, che unisce comfort e modernità. Situato al piano terra, questo appartamento signorile si estende su 85 mq, offrendo ampi spazi distribuiti su quattro locali. La proprietà si distingue per la sua efficienza energetica, essendo certificata in Classe A4, garantendo così un notevole risparmio sui consumi. L' immobile si compone di zona giorno, cucina abitabile, due camere da letto, due bagni ed un comodo posizione è uno dei suoi punti di forza: immerso in un contesto panoramico esclusivo, l'immobile offre una vista incantevole e si trova a soli cinque minuti dallo svincolo della Super Strada, facilitando gli spostamenti. Inoltre, la vicinanza al nuovo Centro Commerciale CONAD aggiunge ulteriore comodità, rendendo facilmente accessibili servizi e negozi. Questa soluzione abitativa rappresenta un'opportunità ideale per chi cerca un ambiente raffinato e ben collegato. Possibilita' di personalizzare interni. Residence esclusivo con piscina condominiale. CANTIERE IN ESCLUSIVA

Mostra tutto

Nelle vicinanze

Trasporto pubblico Trasporto pubblico
Deruta
Deruta
2,5 Km
Scuole Scuole
Scuola secondaria di primo grado "gerardo Dottori"
2,3 Km
Liceo Artistico “Alpinolo Magnini”
2,6 Km
Scuola Media G. Mameli
2,8 Km
Negozi Negozi
Alimentari & Prodotti tipici
2,6 Km
Bar Bar
Bar
2,3 Km
Bar Centrale
2,6 Km
locomotiva
3,0 Km
Ristoranti Ristoranti
Il Chicco di Grano
610 m
Taverna del Gusto
2,6 Km
Osteria Il Borghetto
2,9 Km
Mostra tutto

Caratteristiche

Rif.:
61126105
Piano:
Terra
Posti auto:
2
Balconi:
1
Camere da letto:
1
Arredamento:
Assente
Mostra tutto
Prezzo Prezzo
€ 285.000
Rata mutuo Rata mutuo
€ 1.354 / mese
Proponi il tuo prezzoProponi il tuo prezzo

Classe Energetica

A4
A4
A4
A4
A4
A4
A4
A4
A4
EP invernale del fabbricato:
EP estiva del fabbricato:
Anno di costruzione:
2026
Riscaldamento:
Autonomo
Tipo impianto:
A pavimento
Tipo alimentazione:
Metano

Ti interessa visionare l'immobile?

Fissa un appuntamento  Fissa un appuntamento

Richiedi informazioni

Clicca su Leggi per aprire l'informativa
* Questi campi sono obbligatori

Calcola il tuo mutuo

Semplice e senza impegno
Anticipo

( % )
Mutuo

( % )

pochi semplici passi

inserisci i tuoi dati
Questionario completato
Grazie per aver richiesto un appuntamento senza impegno con un nostro Consulente del Credito e Assicurativo.

Hai inserito correttamente tutti i dati necessari e a breve riceverai una e-mail con un link da convalidare per inviare i tuoi dati.
Affiliato
Studio San Martino Torgiano Srl
Via Deruta, 102 06132 Perugia (PG)
Via Deruta, 102 06132 Perugia (PG)
Zona: San Martino-Montebello-Torgiano-Brufa-Bettona
Mostra su mappa
Orari: LUN /VEN 9.00 - 13 15.30 - 19.30 SABATO 9.00 - 13.00 SABATO POMERIGGIO SU APPUNTAMENTO
Affiliato
Studio San Martino Torgiano Srl
Via Deruta, 102 06132 Perugia (PG)

2026 Tecnocasa Franchising S.p.A. - P. IVA 08365160152 - Via Monte Bianco 60/A 20089 Rozzano (MI). Ogni agenzia ha un proprio titolare ed è autonoma. Privacy policy | Policy utilizzo | Cookie policy