Villa singola in vendita

Bettona, Via del Colle - Colle
€ 350.000
4 locali 4 locali
130 Mq 130 Mq
2 bagni 2 bagni

Villa singola in vendita

Bettona, Via del Colle - Colle

Descrizione annuncio

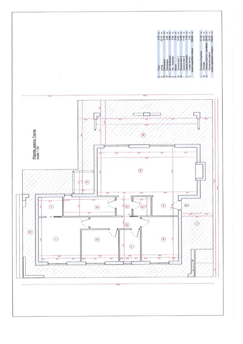
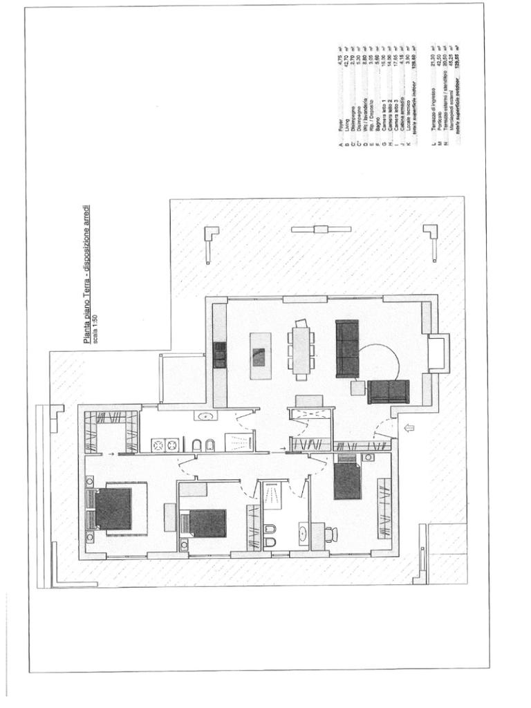
Bettona: tra Torgiano e Bettona, nel cuore della campagna umbra si trova una villa singola di nuova costruzione, pronta ad accogliere chi cerca tranquillità e comfort. Con una superficie di 130 mq, questa residenza si sviluppa interamente al piano terra, offrendo un accesso diretto a un ampio giardino privato, ideale per momenti di relax all'aperto. Circondata da rigogliosi oliveti, la villa rappresenta un'oasi di pace immersa nella natura. Costruita nel 2026, l'abitazione vanta una classe energetica A4, garantendo efficienza e sostenibilità. Gli spazi interni sono progettati per offrire funzionalità e comfort, con ambienti luminosi e ben distribuiti. La posizione privilegiata in aperta campagna permette di godere di panorami suggestivi e di un'atmosfera serena, pur rimanendo a breve distanza dai servizi del comune di Bettona. Una soluzione abitativa che coniuga modernità e tradizione in un contesto esclusivo.

La villetta e' composta da ingrezzo, zona giorno con cucina a vista, dispensa, due camere madie, una camera matrimoniale con cabina armadio e due bagni finestrati con doccia.

Completa la proprietaè un bellissimo giardino recintato ed un portico vivibile di 45 mq.

POSSIBILITA' DI PERSONALIZZARE INTERNI.

Mostra tutto

Nelle vicinanze

Scuole Scuole
Scuole
1,6 Km
Farmacia Farmacia
Farmacia Ricci
2,1 Km
Supermercati Supermercati
Supermercato A&O
2,2 Km
Negozi Negozi
Negozi
1,8 Km
Bar Bar
Bar dello Sport
2,2 Km
locomotiva
2,4 Km
Mostra tutto

Caratteristiche

Rif.:
61171193
Piano:
1 (Piano terra con giardino)
Posti auto:
2
Camere da letto:
3
Arredamento:
Assente
Condizionamento:
Autonomo
Mostra tutto
Prezzo Prezzo
€ 350.000
Rata mutuo Rata mutuo
€ 1.650 / mese
Proponi il tuo prezzoProponi il tuo prezzo

Classe Energetica

A4
A4
A4
A4
A4
A4
A4
A4
A4
EP invernale del fabbricato:
EP estiva del fabbricato:
Anno di costruzione:
2026
Riscaldamento:
Autonomo
Tipo impianto:
A pavimento
Tipo alimentazione:
Pannelli

Ti interessa visionare l'immobile?

Fissa un appuntamento  Fissa un appuntamento

Richiedi informazioni

Clicca su Leggi per aprire l'informativa
* Questi campi sono obbligatori

Calcola il tuo mutuo

Semplice e senza impegno
Anticipo

( % )
Mutuo

( % )

pochi semplici passi

inserisci i tuoi dati
Questionario completato
Grazie per aver richiesto un appuntamento senza impegno con un nostro Consulente del Credito e Assicurativo.

Hai inserito correttamente tutti i dati necessari e a breve riceverai una e-mail con un link da convalidare per inviare i tuoi dati.
Affiliato
Studio San Martino Torgiano Srl
Via Deruta, 102 06132 Perugia (PG)
Via Deruta, 102 06132 Perugia (PG)
Zona: San Martino-Montebello-Torgiano-Brufa-Bettona
Mostra su mappa
Orari: LUN /VEN 9.00 - 13 15.30 - 19.30 SABATO 9.00 - 13.00 SABATO POMERIGGIO SU APPUNTAMENTO
Affiliato
Studio San Martino Torgiano Srl
Via Deruta, 102 06132 Perugia (PG)

2026 Tecnocasa Franchising S.p.A. - P. IVA 08365160152 - Via Monte Bianco 60/A 20089 Rozzano (MI). Ogni agenzia ha un proprio titolare ed è autonoma. Privacy policy | Policy utilizzo | Cookie policy